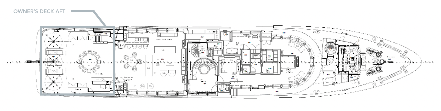
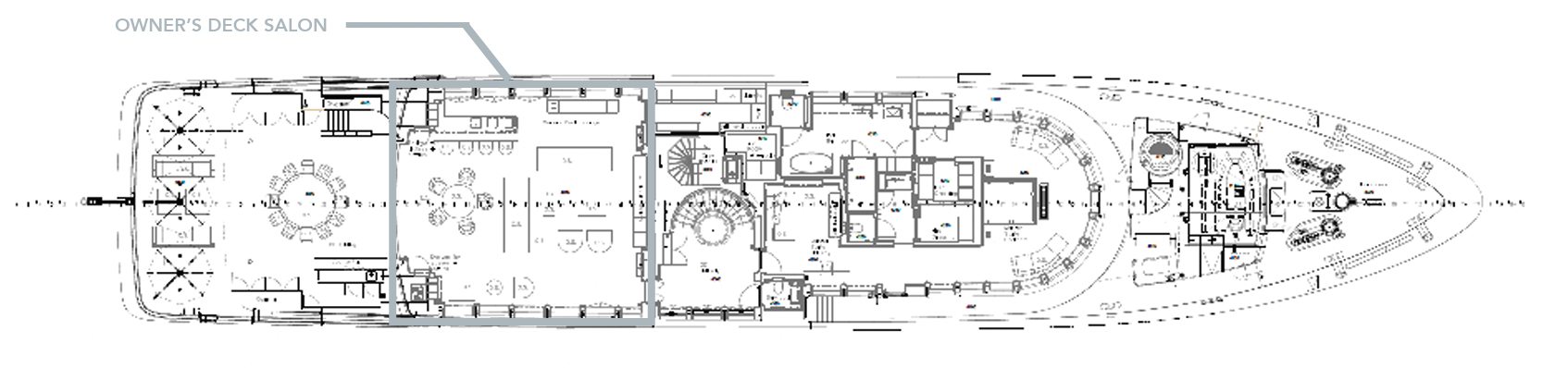
Owners Deck
Top Five II offers guest accommodation for up to 12 guests in 6 suites comprising a master suite, one VIP cabin, two double cabins and two cabins that can operate as twins or doubles. The supremely spacious full beam master suite features extensive storage space provided by the dressing room benefits from a his and her bathroom.



